



Vikas Ritz Europa Kalyan West
Vikas Ritz Europa Project Highlights
Project
Vikas Ritz Europa
Developer
Vikas Developers
Location
Kalyan West
RERA
PR1330002502630
Launch Date
March 2026
Current Status
Under Construction
Possession
December 2030
Typology
1, 2, & 3 BHK
Towers
1
Floors
10
Total Units
98
Land Parcel
2.81 Acres
Elite Lifestyle Amenities At Vikas Europa Kalyan
Connectivity & Location Benefits in Kalyan Nexus
Railway & Transit Hubs
- Kalyan Railway Station: 12 Mins (4.2 Km)
- Shahad Station: 15 Mins (5.1 Km)
- Upcoming Metro Line 5: 08 Mins (2.5 Km)
- Titwala Railway Station: 20 Mins (8.5 Km)
Airways & Roadways
- Kalyan-Dombivli Ring Road: 02 Mins (500 Mts)
- Mumbai-Nashik Highway: 18 Mins (7.5 Km)
- Kalyan-Shil Road: 12 Mins (5.2 Km)
- Navi Mumbai International Airport: 45 Mins (35 Km)
Education & Healthcare
- Don Bosco High School: 05 Mins (1.8 Km)
- Fortis Hospital: 12 Mins (4.5 Km)
- Birla College: 10 Mins (3.8 Km)
- Holy Cross Hospital: 09 Mins (3.2 Km)
Essential Services & Entertainment
- Metro Junction Mall: 15 Mins (5.5 Km)
- D-Mart Kalyan: 08 Mins (3.1 Km)
- Adharwadi Market: 05 Mins (1.5 Km)
- Wadeghar Bus Stop: 02 Mins (300 Mts)
Latest Videos Of Vikas Europa
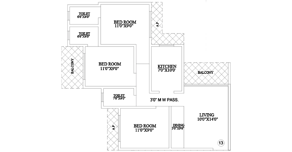
Vikas Ritz Europa Kalyan Floor Plan
Why This Property Is a High-ROI Investment Opportunity?
- Unmatched Appreciation: The proximity to the 26km Ring Road ensures that investors benefit from the highest projected ROI in the Kalyan-Dombivli belt.
- Developer Credibility: Vikas Developers bring a legacy of trust and timely delivery, ensuring your capital is parked in a transparent, RERA-compliant venture.
- Infrastructure Synergy: With the Navi Mumbai International Airport and Metro Line 5 coming online, connectivity to the wider MMR is set to explode.
- Rental Yield Potential: The demand for premium apartments in Kalyan West from working professionals ensures a steady stream of passive income for property owners.
Exclusive Photo Gallery
Blogs & Construction Updates

Get Mesmerising Experience At Vikas Ritz Kalyan West

Vikas Ritz – Success Ki Nayi Destination

FAQs
A: Yes, it is officially registered under Yes, it is fully compliant with MahaRERA guidelines under registration number PR1330002502630, ensuring complete legal transparency.
A: It is strategically situated in Wadeghar, Kalyan West, offering immediate access to the Ring Road and Khadakpada.
A: The project is developed by the reputed Vikas Group (Vikas Realty), known for high-quality residential and commercial constructions in the MMR.
A: As per RERA records, the possession for Vikas Ritz Kalyan West residential development is scheduled for December 2030.
A: You can connect with the official sales team for Vikas Ritz Kalyan by calling +91 7397994881. Contact us to schedule a personalized site tour & request the latest floor plans.
A: The Ring Road dramatically reduces travel time to Dombivli, Titwala, and the Mumbai-Nashik highway, significantly boosting property valuation.